
โดย หมอโจ
มุมมองเจ้าของบ้าน ตอนที่ 89.4
“ ใส่ใจ ”
สิ่งสำคัญที่เจ้าของบ้านต้องมี
(งานเอาท์ดอร์ )
กลัวสถาปนิกจะพูดมากไปกว่านี้
จนหมอผึ้งได้ยิน ผมเลยรีบตอบตกลง
ก่อนที่จะได้ข้อมูลเพิ่มเติม
จากคนรอบข้าง..ในเวลาต่อมาว่า
“ ปลาคาร์ฟมันแพงนะหมอ ”
“ ดูวิลลี่เลี้ยงสิ ปลาตายไปตัวนึง
เหมือนเอารถวีออสไปคว่ำ ”
“ บ่อปลาคาร์ฟก็ต้องลึกๆเป็นเมตร
ตื้นๆอย่างนี้เลี้ยงไม่ได้หรอกหมอ ”
“ ที่เค้าเลี้ยงจริงจังน่ะ เค้าต้องมี
ระบบกรอง ไม่งั้นน้ำไม่ใสอย่างนี้หรอก”
หลากหลายความเห็นประเดประดังเข้ามา..ไอ้เราคนไม่เคยเลี้ยงก็ชักเขว
แต่เอาวะ ไหนๆก็ไหนๆแล้ว ถ้าจะเลี้ยงปลาคาร์ฟดู มันก็ต้องศึกษาก่อน
สีหน้ามุ่งมั่นมาก
“ อยากเข้าใจสิ่งใด ต้องเริ่มจาก
การยอมรับว่า เราไม่เข้าใจสิ่งนั้น ”
ด้วย motto นี้ ผมก็เลยหาข้อมูลอีกแล้วครับ ทั้งซื้อหนังสือ ค้นเว็บ ตระเวน
บ่อปลา ฟาร์มปลา หาคนที่มีประสบการณ์ ทำทุกอย่าง ระหว่างที่
บ่อปลาผมก็สร้างไปเยอะแล้ว
ไปดูเรื่องการทำตัวบ่อก่อนดีกว่า
เดี๋ยวตอนหน้า ค่อยเล่าเรื่องระบบกรอง
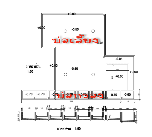
ตามแบบแล้วบ่อเลี้ยงจะเป็นรูปทรง
เหลี่ยมๆ ลึกแค่ 50 cm ส่วนบ่อกรอง
ลึกกว่า และจะมีห้องกรองย่อยๆอีก 5 ห้อง ไม่รวมห้องพักน้ำ
-โปรดอ่านต่อหน้าถัดไป-
ไปหน้าสารบัญ
ประสบการณ์การสร้างบ้าน
95 User Online